petizione contro l'ennesima cementificazione sul lago di Caldonazzo

Firma ora
petition image
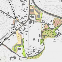
Siamo contrari al Progetto integrato di intervento per la riqualificazione del lungolago di San Cristoforo, promosso dalla Giunta comunale di Pergine, che prevede la costruzione di impattanti edifici ad uso commerciale ed alberghiero residenziale. Siamo inoltre contrari all'uso della "perequazione" perchè, senza una piu rigida regolamentazione, permette un'eccessiva crescita dei diritti edificatori in deroga ai piani regolatori, a esclusivo vantaggio della speculazione edilizia. La riqualificazione di San Cristoforo deve avvenire nel rispetto dell'ambiente, senza ulteriori nuove edificazioni.
Firma la petizione
OPPURE

Se hai già un account accedi, altrimenti registrati gratuitamente e poi firma la petizione compilando i campi qui sotto.
Email e password saranno i tuoi dati di accesso, potrai firmare altre petizioni dopo aver effettuato l’accesso.

Privacy nei motori di ricerca? Puoi usare un nickname:

Attenzione: l’indirizzo email deve essere valido per convalidare la firma, altrimenti verrà eliminata.

Confermo la registrazione e accetto le Condizioni d’uso
Confermo di aver letto la Privacy Policy
Shoutbox
Firma la petizione
OPPURE

Se hai già un account accedi

Confermo la registrazione e accetto le Condizioni d’uso
Confermo di aver letto la Privacy Policy
Obiettivo
195 firme
Obiettivo: 10,000
Ultime firme
18 May 2012
195. Veronica Pintori | Sottoscrivo questa petizione
18 May 2012
194. Fedro | Sottoscrivo questa petizione
18 May 2012
193. Famiano | Sottoscrivo questa petizione
18 May 2012
192. Felice | Sottoscrivo questa petizione
18 May 2012
191. Azelia | Sottoscrivo questa petizione
18 May 2012
190. Agostina | Sottoscrivo questa petizione
17 May 2012
189. Mimma Cavaliere | Sottoscrivo questa petizione
17 May 2012
188. Maura | Sottoscrivo questa petizione
4 April 2011
187. giorgia mezzena | Sottoscrivo questa petizione
30 March 2011
186. valeria FIN | Sottoscrivo questa petizione
29 March 2011
185. Carlo Favale | Sottoscrivo questa petizione
26 March 2011
184. anna ioriatti | Sottoscrivo questa petizione
25 March 2011
183. Emanuele Gabbi Gabbi | Sottoscrivo questa petizione
23 March 2011
182. Elena Erbi | Sottoscrivo questa petizione
22 March 2011
181. Josefine Biasi | Sottoscrivo questa petizione
22 March 2011
180. Chiara Torresan | Sottoscrivo questa petizione
21 March 2011
179. Norbert Corradi | Sottoscrivo questa petizione
21 March 2011
178. Petra Olzer | Sottoscrivo questa petizione
21 March 2011
177. Manuel D'Elia | Sottoscrivo questa petizione
21 March 2011
176. Gianni Pisetta | Sottoscrivo questa petizione
21 March 2011
175. Bruno Dalvit | Sottoscrivo questa petizione, sono stufo di abusi edilizi
21 March 2011
174. Micaela Zeminian | Sottoscrivo questa petizione
20 March 2011
173. chiara martinelli | Sottoscrivo questa petizione
20 March 2011
172. Paolo Andraghetti | Sottoscrivo questa petizione
20 March 2011
171. Paolo Bassetti | Sottoscrivo questa petizione
vedi tutte le firme »
Informazioni
In: -
Destinatario della petizione:
Provincia Autonoma di Trento, Comune di Pergine Valsugana
Tag
Nessun tag
Codici di incorporamento
link diretto
link per html
link forum senza titolo
link forum con titolo
728×90
468×60
336×280
125×125