RACCOLTA FIRME CONTRO LA REALIZZAZIONE DELLA BRETELLA BESANA-MONTICELLO

Firma ora
petition image

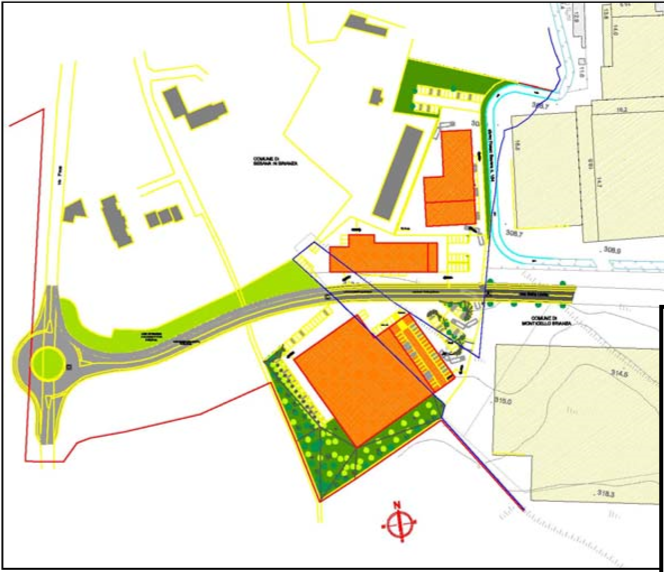
Questa è un'immagine dello scempio che l'amministrazione Cazzaniga vuole fare nella località di Balgano-Cortenuova  per realizzare la bretellina di congiungimento tra via Piave e via Italia Unita. Questo comporterà:

·   PIU'  traffico, soprattutto in orari di apertura delle scuole, in via Garibaldi e nelle traverse;

·   PIU' traffico pesante (+camion) e quindi dell'inquinamento ambientale e acustico;

·    MENO  sicurezza per il pedibus e per tutti i 1500 ragazzi che frequentano le scuole;

·    MENO  zone verdi e campi coltivabili corrispondenti al suolo che verrà occupato dai 264 metri di strada;

 
Firma la petizione
OPPURE

Se hai già un account accedi, altrimenti registrati gratuitamente e poi firma la petizione compilando i campi qui sotto.
Email e password saranno i tuoi dati di accesso, potrai firmare altre petizioni dopo aver effettuato l’accesso.

Privacy nei motori di ricerca? Puoi usare un nickname:

Attenzione: l’indirizzo email deve essere valido per convalidare la firma, altrimenti verrà eliminata.

Confermo la registrazione e accetto le Condizioni d’uso
Confermo di aver letto la Privacy Policy
Shoutbox
Firma la petizione
OPPURE

Se hai già un account accedi

Confermo la registrazione e accetto le Condizioni d’uso
Confermo di aver letto la Privacy Policy
Obiettivo
27 firme
Obiettivo: 1,000
Ultime firme
5 March 2016
27. gabriele giola | Sottoscrivo questa petizione
17 September 2015
26. stefania monego | Sottoscrivo questa petizione
13 May 2015
25. Dario Grandi | Sottoscrivo questa petizione
13 May 2015
24. Davide Rodella | Sottoscrivo questa petizione
13 May 2015
23. Ilaria Villa | Sottoscrivo questa petizione
13 May 2015
22. jacopo beni | Sottoscrivo questa petizione
13 May 2015
21. Erika Milanese | Sottoscrivo questa petizione
13 May 2015
20. Alberto Citossi | Sottoscrivo questa petizione
13 May 2015
19. Andrea Villa | Sottoscrivo questa petizione
13 May 2015
18. Laura Capra | Sottoscrivo questa petizione
12 May 2015
17. Matteo Sala | Sottoscrivo questa petizione
12 May 2015
16. Alessandro Cacciatori | Sottoscrivo questa petizione
12 May 2015
15. Marika pozzi | Sottoscrivo questa petizione
12 May 2015
14. Giulia Marcarini | Sottoscrivo questa petizione
10 May 2015
13. Niccolò Lo Piparo | Sottoscrivo questa petizione
10 May 2015
12. Federico Binda | Sottoscrivo questa petizione
9 May 2015
11. Andrea Consonni | Sottoscrivo questa petizione
9 May 2015
10. Giada Gallenda | Sottoscrivo questa petizione
9 May 2015
9. paola riva | Sottoscrivo questa petizione
9 May 2015
8. Martina Giulia Rigamonti | Sottoscrivo questa petizione
9 May 2015
7. Veronica Patria | Sottoscrivo questa petizione
6 May 2015
6. Maikol Bergamaschi | Sottoscrivo questa petizione
6 May 2015
5. Claudia Gobbato | Sottoscrivo questa petizione
6 May 2015
4. Alessio Zanzottera | Sottoscrivo questa petizione
6 May 2015
3. Claudio Magistroni | Sottoscrivo questa petizione
vedi tutte le firme »
Informazioni
In: -
Destinatario della petizione:
Tag
Nessun tag
Codici di incorporamento
link diretto
link per html
link forum senza titolo
link forum con titolo
728×90
468×60
336×280
125×125